2D- och 3D planritning
En bild, många möjligheter
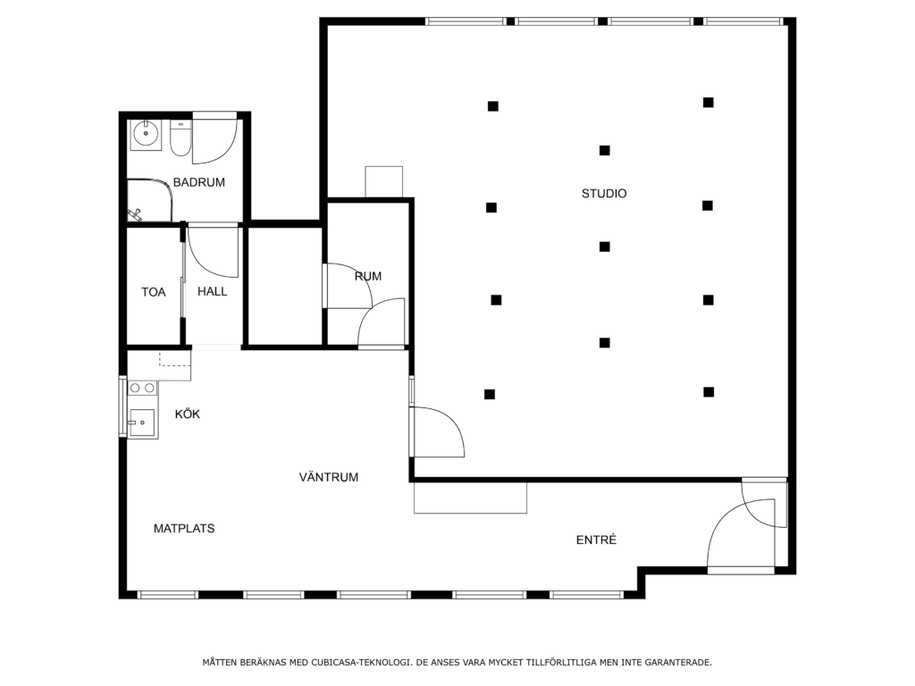
2D Planritning

En 2D-planritning ger en tydlig och stilren överblick av en fastighet, butik, kontor eller annan lokal. Perfekt för mäklare, företag och verksamheter som vill ge sina kunder en enkel visuell förståelse av lokalens layout. Planritningen kan inkludera rumsindelning, måttangivelser och möblering beroende på behov. Precision 95%.
Fördelar:
✔️ Enkel och tydlig layout
✔️ Perfekt för fastighetsannonser och presentationer
✔️ Anpassningsbar med möbler, färger och text
💰 Pris: Från 495 kr (för upp till 50 kvm)
Interaktiv 2D Planritning

Med en interaktiv 2D-planritning kan besökare klicka på olika delar av ritningen och se detaljerad information, bilder eller länkar till en virtuell rundtur. Perfekt för att skapa en mer engagerande upplevelse för potentiella kunder eller besökare.
Fördelar:
✔️ Koppla bilder till rum
✔️ Anpassad design för din verksamhet
✔️ Idealisk för fastigheter, hotell och showroom
💰 Pris: Från 995 kr (för upp till 50 kvm)
3D Planritning

En 3D-planritning ger en mer realistisk och detaljerad visning av fastigheten. Den visar rummen i perspektiv med möbler och inredning, vilket gör det enklare för kunder att föreställa sig hur utrymmet kan användas.
Fördelar:
✔️ Modern och profession
💰 Pris: Från 1995 kr (för upp till 50 kvm)
Alla priser är exkl. 25% moms
